продажа, коттедж, Плодородная ул, Саратов
Цена: 9 200 000 руб.
Описание
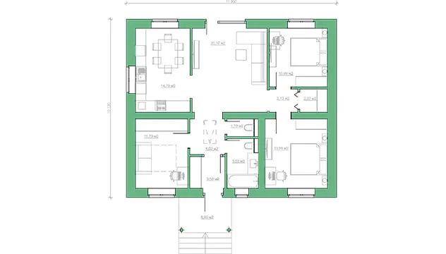
Дoм площадью 90 м в районе Авангард отличная плaнировка комнат с выходом на террасу создаст уютное пространство для всей семьи.
Стены из газосиликатного блока ГРАСС c декоративной штукатуркой или облицовочным кирпичом.Такой дом хорошо держит тепло и позволяет сэкономить на отоплении. Огнестойкий, морозоустойчивый. Сочетается с любым видом отделочных материалов. И обладает высокой шумоизоляцией! Свайно-ростверковый фундамент очень надежный, за счет единой монолитной конструкции. Кровля из металлочерепицы.
Это идеальное место для комфортной загородной жизни. Поселок расположен всего в 20 минутах от центра города.
Можно заказать строительство дома по индивидуальному проекту.
Дома сдаются без внутренней отделки, чистовую отделку можно заказать у застройщика и включить стоимость отделки в ипотеку.
Подходит под льготную ипотеку от 6%! Можно использовать материнский капитал.
Поможем оформить и подключить коммуникации по сниженной цене.
На выбор есть дома планировки: 75 кв.м, 90 кв.м, 100 кв.м.
Предлагаем посетить бесплатную экскурсию по строящимся объектам.
На экскурсии вы сможете пообщаться с прорабом и строителями
Познакомитесь с технологией строительства
Оцените качество материалов на стройплощадке.
Общая информация
- Тип сделки:
- Продажа
- Тип объекта:
- Дома, дачи, участки
- Адрес:
- Россия, Саратовская область, Саратов, Кировский район, Плодородная ул
- Общая площадь:
- 90.00 м²
















